Bungalowboot 'La Mare Apart L'
Hausboot mit 2 Kabinen mieten für 4 bis 6 Personen
Wunderschönes Bungalowboot für 4 bis 6 Personen!
Mieten Sie Ihr schwimmendes Ferienhaus auf dem Wasser ab Marina Wolfsbruch auf der Mecklenburgischen Seenplatte.

Bungalowboot 'La Mare Apart L'
| Technische Daten 'La Mare Apart L' | |
|---|---|
| Länge: | 10,80 m |
| Breite: | 4,20 m |
| Tiefgang: | 0,50 m |
| Verdrängung: | 7,5 t |
| Motorleistung | 40 PS |
| Motoren (Benzin): | 2 |
| Benzintank: | 70 l |
| Wassertank: | 400 l |
| Schmutzwassertank: | 400 l |
| Wohn- und Nutzfläche: | ca. 26 m² |
| Bettwäsche und Handtücher | nein |
| Ausstattung 'La Mare Apart L' |
|---|
| Innensteuerstand im Wohnraum |
| Wohnzimmer mit Fußbodenheizung, Tisch und Stühlen, Sofa (ausziehbar zum Doppelbett), Schrank |
| Küchenzeile mit Schränken, Gaskocher, Spüle, Kühlschrank 230V, komplette Ausstattung (Geschirr, Töpfe ...), Kaffeemaschine, Toaster, Wasserkocher |
| 1. Kabine mit einem Doppelbett, Fenster und Tür zur Heckterrasse |
| 2. Kabine mit Etagenbett (190x80cm) |
| 1 Nasszelle mit Dusche, elektrischer Toilette und Waschbecken |
| Dachterrasse |
| Bugterrasse mit Tisch und Stühlen |
| Heckterrasse mit Badeplattform und Badeleiter |
| TV mit Sat-Anlage, Radio |
| Bugstrahlruder |
| Kartenplotter |
| Solarpaneele 2x 270W |
| Rückfahrkamera, verstärktes Ankersystem |
| Inverter 2400 W |
| Warmwasserheizung |
| Winterpaket |

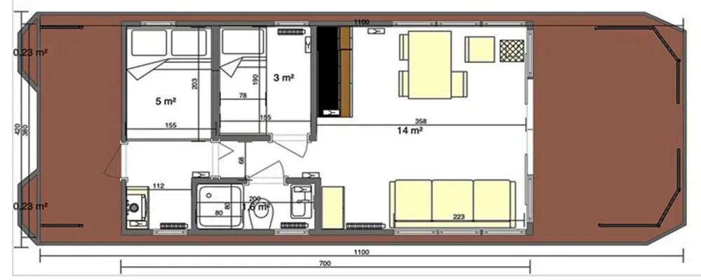
Bungalowboot 'La Mare Apart L' - Aufteilung mit 2 Kabinen
Das Bungalowboot 'La Mare Apart L' verfügt über zwei Schlafkabinen, ein Badezimmer, einen Salon mit Küchenzeile und zwei Terrassen.
Genießen Sie einen Hausboot-Urlaub auf der Mecklenburgischen Seenplatte.
Bungalowboot 'La Mare Apart L' - Bilder:
Bungalowboot 'La Mare Apart L' - Salon
Bungalowboot 'La Mare Apart L' - Kabine
Bungalowboot 'La Mare Apart L' - Bad
Vercharterer: Unruh Marine


